"Tillfälle att förverkliga din dröm till verklighet"
Hårstorp, Finspång
Bävervägen 1 61245 Finspång
-
Kommersiellt: Restaurang
-
Tomtareal/mark: 3 999 kvm
-
Pris: 3 200 000 SEK
-
Pristyp: Högstbjudande

Bilder
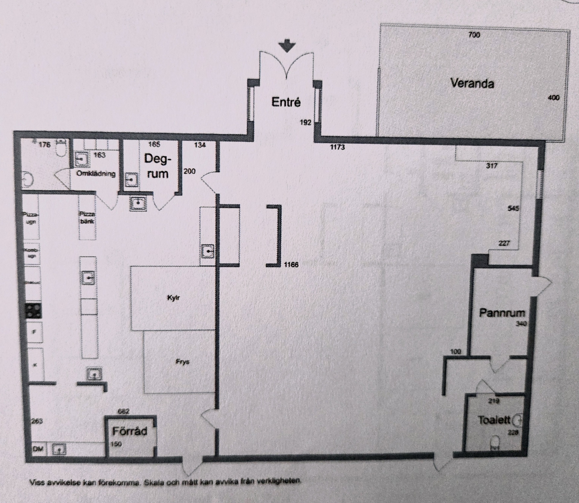
Planlösning
Beskrivning
Välkommen till Bävervägen 1! Här har du en perfect tillfälle att förvärva din drömfastighet och förverkliga din affärsplan . En toppen möjlighet för dig som vill dra igång en nyckelfärdig restaurang eller någon annan verksamhet i hjärtat av Finspång. Här finns alla förutsättningar för att skapa en framgångsrik verksamhet då det är endast fantasin som sätter gränserna.. Läget ger möjlighet att attrahera både lokalbefolkning och genomresande då fastigheten ligger intill riksväg 51 med mycket bra skyltläge. De generösa ytorna gör lokalen flexibel efter dina behov och visioner. Fastigheten är 3 999 m² med rymlig parkering och enkla möjligheter för avlastning. Byggnaden är 216 m² med beviljat bygglov om ytterligare 70 m² . Ljus och öppen planlösning där matsalen är stor och rymmer 70 sittande gäster samt så finns det en veranda som utökar sittplatserna sommartid. Här finns bufféservering, kassadisk och kundtoalett. Köket är, liksom matsalen, stor och rymlig. Här finns bl.a. köksområde, kylrum, frys, diskområde, degrum, omklädningsrum och wc. Huset totalrenoverades 2022. En lista på renoveringar och utrustning som önskar säljas finner du nedan. Finns en dröm om att endast ta över verksamheten och bli hyresgäst? Kontakta ansvarig fastighetsmäklare för mer information!
Fakta
Allmän information
- Objektskategori: Kommersiell
- Objektstyp: Restaurang (Typkod: 325)
- Tillträde: Omgående
- Taxeringsvärde: Taxeringsvärdet är 475 000 SEK (fastställt 2025) varav byggnadsvärde 286 000 SEK och markvärde 189 000 SEK.
- Tomt: Tomtareal/mark: 3 999 kvm. Totalareal: 3 999 kvm.
-
Fastighetsbeteckning: FINSPÅNG HÅRSTORP 3:243
-
UppdragsID: GWM 4MG
Värderingsenheter
-
Typ av byggnad: Restaurang, butik, lokal, handel
-
Värdeår: 1981
-
Byggår: 1981
-
Taxeringsvärde byggnad: 286 000 SEK
-
Area: 216 kvm
-
Byggnadskommentar:
Välkommen till Bävervägen 1! Här har du en perfect tillfälle att förvärva din drömfastighet och förverkliga din affärsplanen . En toppen möjlighet för dig som vill dra igång en nyckelfärdig restaurang eller någon annan verksamhet i hjärtat av Finspång. Här finns alla förutsättningar för att skapa en framgångsrik verksamhet då det är endast fantasin som sätter gränserna.. Läget ger möjlighet att attrahera både lokalbefolkning och genomresande då fastigheten ligger intill riksväg 51 med mycket bra skyltläge. De generösa ytorna gör lokalen flexibel efter dina behov och visioner. Fastigheten är 3 999 m² med rymlig parkering och enkla möjligheter för avlastning. Byggnaden är 216 m² med beviljat bygglov om ytterligare 70 m² . Ljus och öppen planlösning där matsalen är stor och rymmer 70 sittande gäster samt så finns det en veranda som utökar sittplatserna sommartid. Här finns bufféservering, kassadisk och kundtoalett. Köket är, liksom matsalen, stor och rymlig. Här finns bl.a. köksområde, kylrum, frys, diskområde, degrum, omklädningsrum och wc. Huset totalrenoverades 2022. En lista på renoveringar och utrustning som önskar säljas finner du nedan. Finns en dröm om att endast ta över verksamheten eller bedriva någon annan verksamhet eller endast och bli hyresgäst? Kontakta ansvarig fastighetsmäklare för mer information! Byggnadsbeskrivning: Enplanshus med platta på mark, tegel/trä fasad, tegelpannor, 3 glas fönster, stomme och bjälklag av trä, bergvärme, kommunalt vatten och avlopp. Underhåll/renoveringar Huset är totalrenoverat under 2022: - Nytt tegeltak, nya hängrännor och stuprör. - Nya väggar med ny isolering, sprutisolering tak/vind. - Nytt värmesystem, bergvärme med nya element (IVT värmepump 12kW). - Nytt golv, klinker. - Nya helkaklade toaletter, 2 st. Utrustning utöver fastighetsköpet Samtliga maskiner är från 2022 och ingår inte i köpet. Säljs separat för 1.2 mkr. - Pizzakylbänk - Tefcold PT1200 inklusive över ränna, stenskiva 1510x800x1000 - Kombiugn - Rational Icombi Classic 10-1 - Stativ för ugn, höjd ca 700 - Stekbord med ben - Fribergs VKF40 - manuell tippning 4 ben - Wexiödisk WD 7 - Dubbelfritös - Wery 2 x 10L FQE66P 18 kW - Stativ under fritös - 600x535x560 - Pizzaugn Sveba Dahlen - P602 2 däck - Grönsaksskärare - Hällde 350-manuell matare - Kylrum - Tefcold 2300x2300x2110 m golv,kompressor samt hyllor - Frysrum - Tefcold 2300x2300x2110 m golv kompressor samt hyllor - Degblandare - 42 L IGF Italia 2 hastigheter löstagbar kittel, hjul ingår - Blandningsmaskin - Varimixer AR 40 VL-1S-kontrollpanel 40 L,3 verktyg - B-sats Björn 40/20L kittel,visp och spade - Buffévagn varm - Bartscher 6 x GN 1/1-150 mm - Buffévagn kall - Bartscher 6 x GN 1/1 - Vattenbad - 148-SN 368x612x331 - Kolgrill 1600 mm samt rökfläkt - Köksfläkt - Systemair - Kökskappa - Bänk - RFR 2100x680 ho 500x700 underhylla samt skenor - Inmatningsbänk - RFR - Gallerhylla - RFR till inmatningsbänk - Bänk - RFR 1600x630, gallerhylla, ho 400x400 håltagning för blandare samt silhink - Bänk - RFR 1470x680 ho 500x500 - Bänk - RFR 1500x630 m blandare, ho 500x400, överhylla, stoplist samt lådor - 22 bord - 70 stolar - Kassa - SAM4S - Rostfria kantiner - ca 120 st olika storlek - Ca 100 tallrikar - Ca 250 bestick (knivar, gafflar och skedar) - Köksbord - Värmeskåp - Köksverktyg (slevar, skedar, tänger etc.) - Klädskåp
Övriga rättigheter och belastningar
- Planer och bestämmelser:
- Småindustriområdet(stg 672a m fl), Stadsplan (Beslutsdatum: 1985-05-10, Senast ändrad: 2023-12-13).
Ekonomi
- Pris: 3 200 000 SEK. Pristyp: Högstbjudande.
- Inteckningar: Det finns 1 pantbrev om 600 000 SEK.
-
Fastighetsskatt/-avgift: 4 750 SEK.
- Driftkostnader: Summa driftkostnad: 26 000 SEK/år. Elkostnad: 10 000 SEK/år. Försäkring: 4 000 SEK/år. Vatten och avlopp: 9 000 SEK/år. Renhållning: 3 000 SEK/år.
-
Intäkt: 0 SEK/år